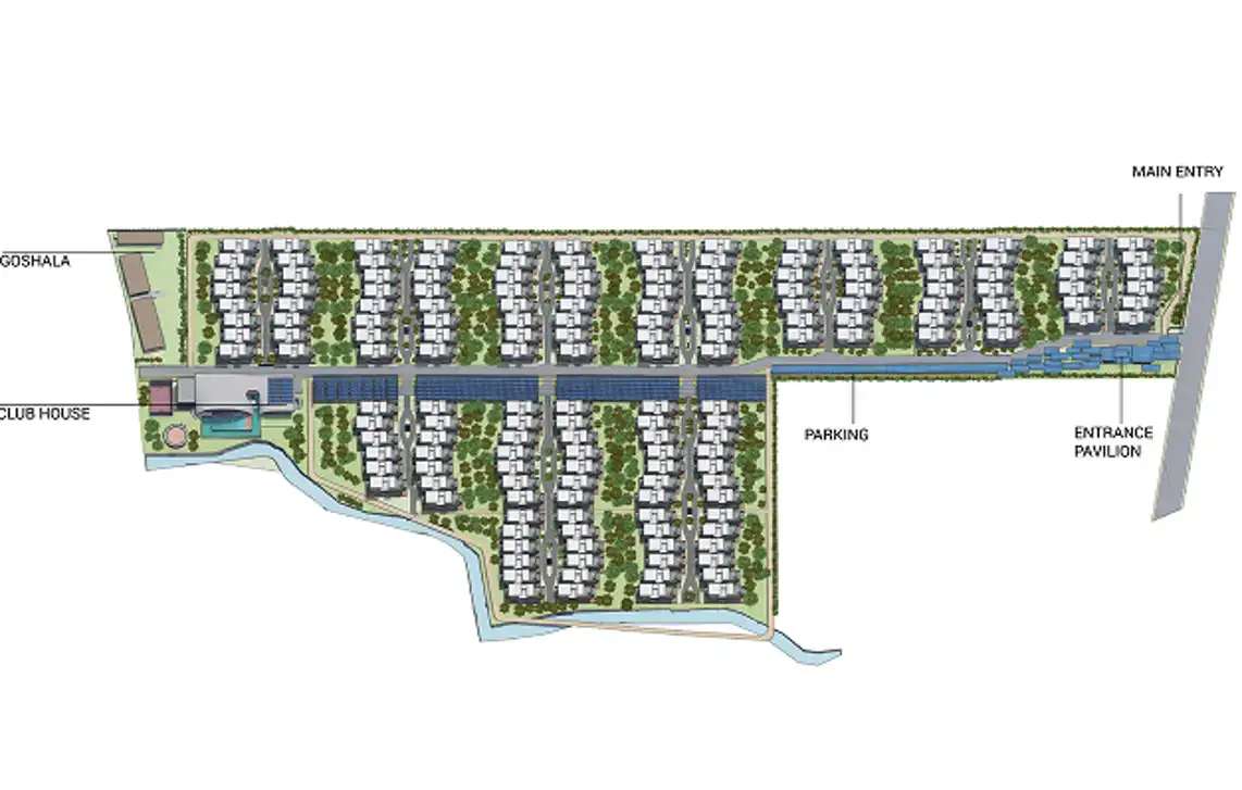
Palgutta

Site Area

33 Acres

Built Up Area

9,00,000 Sq.ft

Location

Hyderabad, Telangana

Category

Alternate Living

    Access Portfolio – Architecture

    Fill in your details to download this portfolio.






    By submitting, you agree to be contacted by our team regarding your requirements.