Antharam
60 Acres
2650 Sq.ft.
Hyderabad, Telangana
Alternate Living
At Organo Antharam, the design emerges from a nuanced exploration of edges—where materials meet, surfaces intersect, and experiences unfold. These in-between moments, often overlooked, become active thresholds that shape spatial perception. The project celebrates the inherent tension and harmony between contrasting materials, using both vertical and horizontal edges to articulate the built form and its relationship with the surrounding landscape.
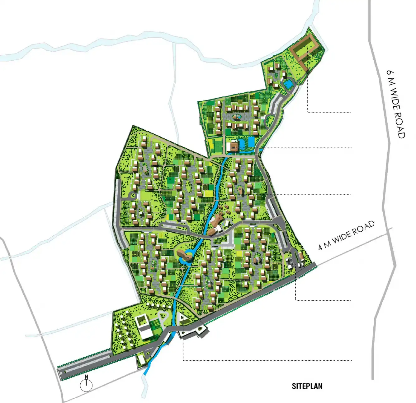
Rooted in a sensitive understanding of its context, the project integrates water as both a resource and an experiential element. While water cannot be generated on-site, it is carefully harvested through surface run-off and aquifer recharge systems. These strategies are not concealed; instead, they are made visible and accessible, allowing users to engage with water cycles in their daily lives. The introduction of natural ponds, as opposed to curated water features, further strengthens this connection—embracing seasonal variations and fostering awareness of local ecological systems and consumption patterns.
Materiality plays a pivotal role in grounding the project within its rural-urban (rurban) setting. The use of thatch as a roofing finish draws from traditional Indian village architecture, reinterpreted in a contemporary context. This choice creates a quiet yet confident architectural expression—one that sits gently against the expansive skies and rolling farmlands.
The roof, conceived as a free-flowing form, is structurally composed of concrete beams and a composite system, layered with thatch above. Its generous volume facilitates natural ventilation, channeling prevailing winds to create comfortable microclimates beneath. The roof folds and loops seamlessly, forming a continuous, fluid canopy that appears to float over slender white columns anchored to a robust platform.
Beneath this shelter, the architecture dissolves into lived experience—spaces for gathering, working, and pausing. Whether sharing a meal, working on a laptop, or simply listening to the rustle of leaves and birdsong, the design fosters a deep connection between people, place, and nature.
Organo Antharam is not just a built form; it is an evolving dialogue between material, climate, and everyday life—where architecture becomes a medium to experience, understand, and coexist with the environment.
